LOCATION
Thessaloniki, GR
ROLE
architecture—
interior design—
branding—
YEAR
2021
PARTNERS
kofidisba—
print code—
karen gkiounasian photography—
Amazon Vet is a veterinary clinic in Thessaloniki with a concept inspired by nature, designed by elefkon design studio. The owners’ goal was to offer health care and grooming services in an environment designed to eliminate pet stress. Given the tranquility offered by nature, this jungle concept was chosen on which the interior and branding design were based. Jungle motifs, shades of green, natural materials and abundant plants formed the design palette.
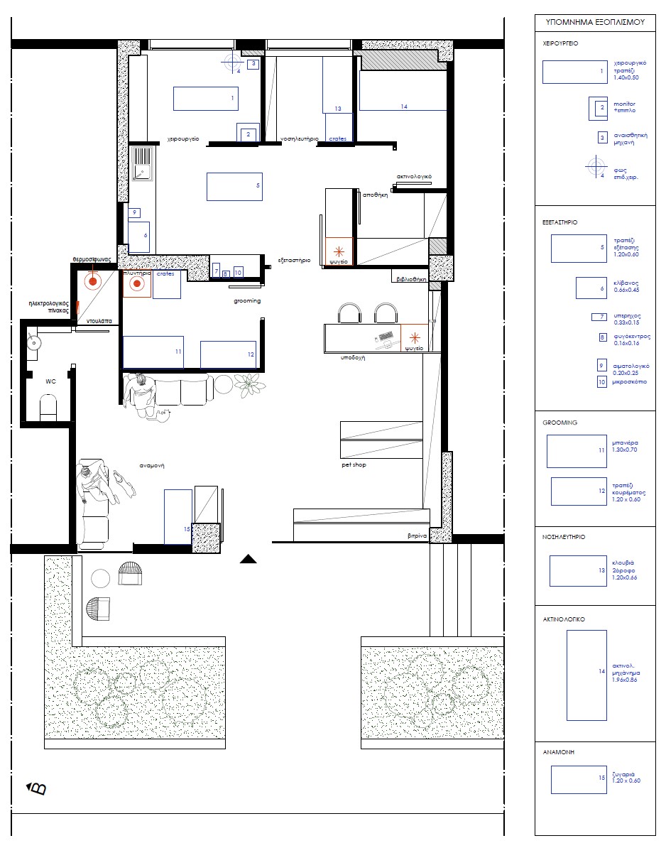
The original layout of the 90 sqm. changed completely to serve the needs of the veterinary clinic. The request was to create distinct private areas for the different services (examination room, surgery, infirmary, radiology, grooming, storage area) and an area with reception, waiting room and pet shop. Thus, entering the clinic, the waiting area was placed on the one hand with a separate area for the cat and the dog to avoid the stress of meeting each other, and on the other hand was placed the reception with the pet shop. In direct access are the frequently used areas of the grooming and the examination room, while the rooms of the surgery, infirmary, radiology, and storage have access from the examination room since they are only accessible by the staff. Finally, in the WC next to the waiting room, consistent in terms of aesthetics, the green color dominates with an emphasis on a print of the happy – from the visit – pets with the mirrors represent their monocles.
Το Amazon Vet στην Θεσσαλονίκη είναι ένα κτηνιατρείο με concept εμπνευσμένο από την φύση, σχεδιασμένο από το elefkon design studio. Στόχος των ιδιοκτητών ήταν να προσφέρουν υπηρεσίες φροντίδας υγείας και καλλωπισμού, σ’ ένα περιβάλλον σχεδιασμένο με τέτοιον τρόπο, ώστε στο βαθμό του εφικτού, να αποβάλλεται το στρες και ο ίδιος ο χώρος να λειτουργεί καθησυχαστικά στους πελάτες και τα κατοικίδιά τους. Δεδομένης της ηρεμίας που προσφέρει η φύση επιλέχθηκε αυτό το jungle concept πάνω στο οποίο βασίστηκαν το interior και το branding design. Τα jungle μοτίβα, οι αποχρώσεις του πράσινου, τα φυσικά υλικά και τα άφθονα φυτά αποτέλεσαν την παλέτα του σχεδιασμού.
Η αρχική διάταξη του χώρου 90 τ.μ. άλλαξε ολοκληρωτικά προκειμένου να εξυπηρετήσει τις ανάγκες του κτηνιατρείου. Ζητούμενο ήταν να δημιουργηθούν διακριτοί ιδιωτικοί χώροι για τις διαφορετικές υπηρεσίες (εξεταστήριο, χειρουργείο, νοσηλευτήριο, ακτινολογικό, grooming, αποθηκευτικό χώρος) και ένας ενιαίος χώρος με υποδοχή, αναμονή και pet shop. Έτσι, κατά την είσοδο στον κοινόχρηστο χώρο χωροθετήθηκε από την μία η welcoming αναμονή με ξεχωριστή αναμονή για την γάτα και τον σκύλο για να αποφευχθεί το στρες της συνάντησης τους και από την άλλη η υποδοχή με το pet shop. Σε άμεση πρόσβαση βρίσκονται οι χώροι συχνής διέλευσης του grooming και του εξεταστήριου, ενώ οι χώροι του χειρουργείου, νοσηλευτηρίου, ακτινολογικού και αποθήκης έχουν πρόσβαση από το εξεταστήριο αφού έχουν πρόσβαση μόνο από το προσωπικό. Τέλος, στο wc δίπλα από την αναμονή συνεπές ως προς την αισθητική κυριαρχεί το πράσινο χρώμα με έμφαση σε ένα print των χαρούμενων -από την επίσκεψη- κατοικίδιων με τους καθρέπτες να αποτελούν τα monocle τους.















